
Woodlawn Branch of CPL
6028 S Champlain Ave, Chicago IL, 60637
Akshat Goyal
Prof, Charlie Vinz
2023 (Third Year)

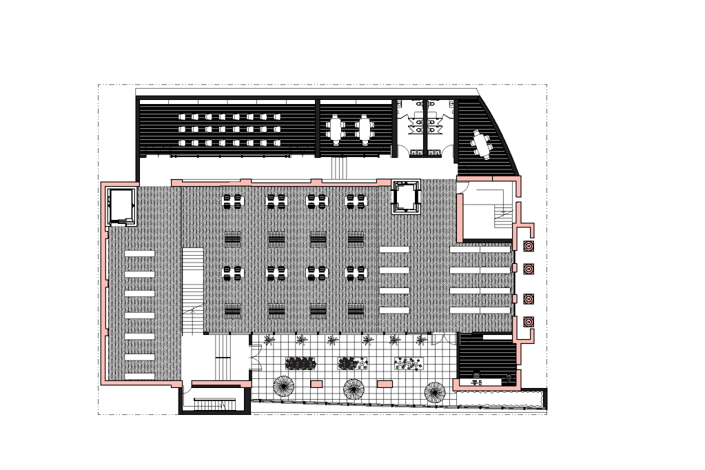
In Woodlawn, an old synagogue has been creatively repurposed into a Chicago public library, preserving 80% of the original structure for a traditional library and dedicating 20% to a seed library, promoting sustainability and community involvement. This adaptive reuse project celebrates the building’s history while meeting modern community needs.











According Civic Seeds: New institutions for seed systems and communities – a 2016 survey of California seed libraries by Daniela Soleri
“Annually about 4776 people borrow seeds from, and 238 people return seeds to the SLs in this study, that operate through over 17,000 hours of work/year.” Which is about 6% seed return rate.
The below image shows how you can use the library as a seed library where you can grow the seeds as well as learn how to harvest them, thereby learning and also not have a decrease in the seed quantity supplied by the library. For the people, there are three places where people can do the process in – a dark one, a semi-light and a direct sunlight space.


