
Reconfigue :||: Reconvene
Anywhere
Akshat Goyal
Moises Encisco
Ethan Pulvermacher
Tiny House 2023 Microhome 2023
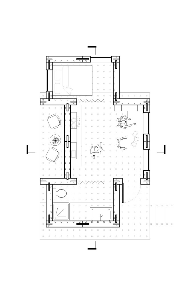
Reconfigure :II: Reconvene is a modular structural system designed to be easily transported and modified. The aim is to make construction as straightforward as possible, allowing for two people to fully build and deconstruct their house with only a drill and a mallet. With such a flexible system, a house is able to grow and change at will, adapting to the needs of its user. There are many occupations that require frequent travel at irregular intervals, so finding permanent housing can be a challenge. R:II:R allows these people, such as this lovely couple of landscape and wildlife photographers, to move at will. Each module, a 6’x12’ panel, can fit on a car’s trailer, as well as in a cargo shipping container for international travel. Each panel is built with a waterproof plywood shell surrounding several layers of cardboard insulation. A variety of finishes are then available for each household to create their unique home. What results is a lightweight and eco-friendly system to fit the needs of any household.










