
Brighton Park Fieldhouse
4229 S Archer Ave, Chicago IL, 60632
Akshat Goyal
Prof, Catherine Wetzel
2022 (Third Year)

Brighton Park faces various challenges as highlighted by the “Brighton Park Neighborhood Council”.
They are trying to solve these problems by partnering with community schools in the neighborhood such as “Shield Elementary”, “Kelly High School”, “Brighton Park Elementary” and “Davis Elementary” which are not located
far from the site. These schools provide games, activities, academic support, social-economic support, violence prevention and mental health services for the neighborhood but are not sufficient for the neighborhood at large. They are also trying to give immigartion services, healthcare for all and also help prevent violence.
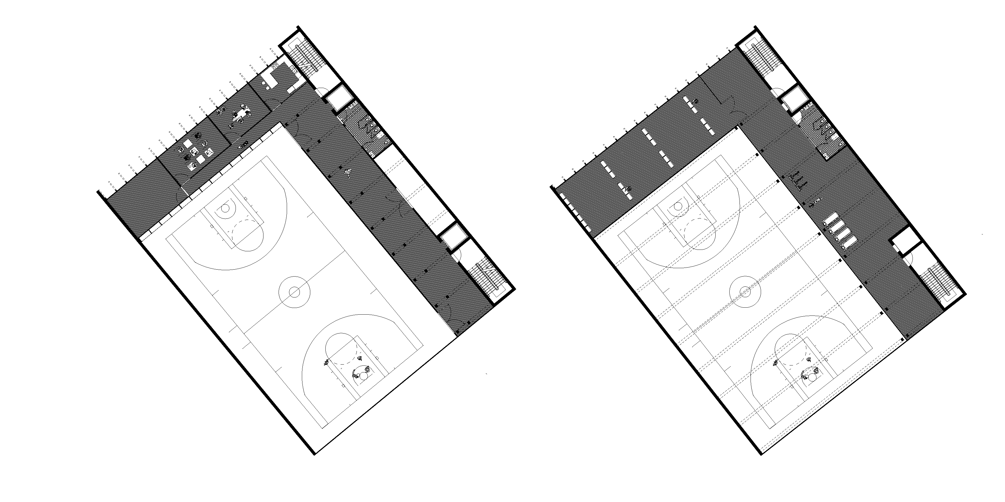
In this fieldhouse, it will provide a club room for the “Brighton Park Neighborhood Council” to meet and help improve the neighborhood. This fieldhouse helps prevent violence by having the entire building very open and visible. The multi-courts will also help the people of the neighborhood to get to know each other and have events together which will also increase safety in the neighborhood. Having talked to the people, we were told that there was no place for a temporary vaccination centre due to the absence of any public hospital or a large public space in the neighborhood where such a centre could be opened. This fieldhouse aims to provide a space (the multi-courts) to set up a vaccination centre for any emergency. This fieldhouse will also provide a place for children and adults to play sports in the two multi-courts present on the basement and the second floor. Which will foster happiness and joy in this neighborhood. The intent of this fieldhouse is to serve the neighborhood with an anchor point where important decisions as well as fun events could take place.










